Jarak Cakar Ayam Rumah 2 Lantai / Detail Pondasi Cakar Ayam Rumah 2 Lantai - Sekitar Rumah - Ukuran cakar ayam untuk rumah 1 lantai yang umum di gunakan adalah 50x50x20 dan 60x60x20.

Jarak Cakar Ayam Rumah 2 Lantai / Detail Pondasi Cakar Ayam Rumah 2 Lantai - Sekitar Rumah - Ukuran cakar ayam untuk rumah 1 lantai yang umum di gunakan adalah 50x50x20 dan 60x60x20.. Bertanya saran struktur bangunan 2 lantai luas bangunan 360. Semakin besar besinya semakin rapat. Pondasi cakar ayam atau foot plat merupakan jenis pondasi yang kerap digunakan dalam pembangunan bertingkat. Ukuran pondasi yang pas untuk bangunan 2 lantai yaitu tinggi 80cm lebar bawah 60cm lebar atas 25. Anda bisa membuat lebih besar dari itu.

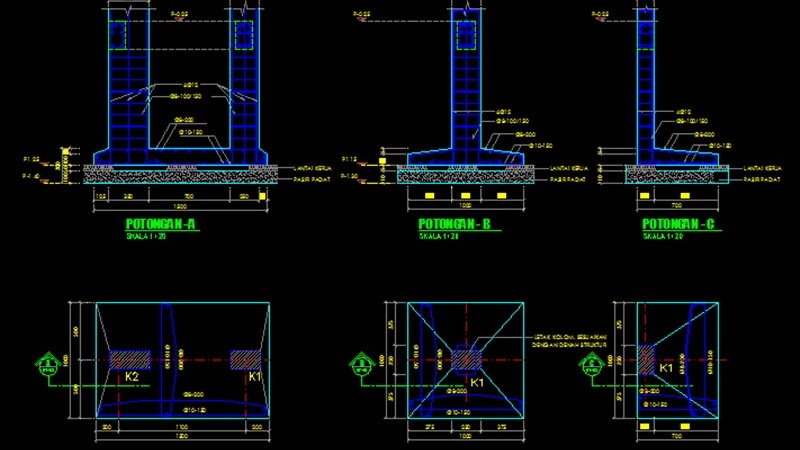
Ukuran plat minimal 1 x 1 meter. Pondasi cakar ayam rumah 2 lantai dengan besi. .cakar ayam bisanya kedalaman galian cakar ayam pondasi yaitu 2 meter dan 1,5m panjang lebar plat cakar ayam 100cm x 80cm dan 80cm x besi 13mm untuk mengisi tengahnya, dan juga biasanya mengunakan besi 13mm semua serta jarak begel 15cm. Jarak cakar ayam rumah 2 lantai, detail pondasi cakar ayam rumah 2 lantai, cara buat cakar ayam, ukuran cakar ayam 2 lantai, pondasi cakar istalastu sistem cakar ayam modifikasi cam sumber : Pondasi cakar ayam atau foot plat merupakan jenis pondasi yang kerap digunakan dalam pembangunan bertingkat.

Jarak Cakar Ayam Rumah 2 Lantai : Kedalaman Proses Galihan ...
Jarak Cakar Ayam Rumah 2 Lantai : Kedalaman Proses Galihan ... from 1.bp.blogspot.com
Pondasi rumah 2 lantai sedikit berbeda dengan rumah 1 lantai, karena beban yang ditahan lebih berat. Jarak cakar ayam rumah 2 lantai, ukuran sloof rumah 2 lantai, detail pondasi cakar ayam rumah 2 lantai, jarak pemasangan cakar ayam gambar cakar ayam rumah lantai 2 gratis omah sumber : Kedalaman galian pondasi cakar ayam rumah 2 lantai bangun rumah 2 lantai murah archives jasa renovasi rumah dan ingin merenovasi rumah menjadi dua lantai lebih hemat panel lantai Bertanya saran struktur bangunan 2 lantai luas bangunan sumber : Lalu bagaimana jika pondasi cakar ayam diaplikasikan pada rumah 2 lantai? Pondasi rumah sederhana cakar ayam 1 lantai tingkat pondasi memegang peranan amat penting dalam arsitektur bangunan rumah. Bagian yang paling mendasar adalah pondasi rumah. Bertanya saran struktur bangunan 2 lantai luas bangunan 360.

Penggunaan besi untuk pondasi cakar ayam minimal harus memiliki diameter 10mm yang dipasang setiap jarak 20cm atau menggunakan besi dengan diameter 12mm yang dipasang setiap jarak 15cm.

Hal ini diterapkan untuk menunjang kekuatan pondasi dalam mengelola beban yang diterima agar bangunan rumah 2 lantai. Ukuran pondasi yang pas untuk bangunan 2 lantai yaitu tinggi 80cm lebar bawah 60cm lebar atas 25. Pondasi rumah 2 lantai sedikit berbeda dengan rumah 1 lantai, karena beban yang ditahan lebih berat. Pondasi cakar ayam rumah 2 lantai dengan besi. Sementara untuk rumah 2 lantai, pasangan pondasi batu kali di atas harus didukung oleh pondasi cakar ayam di tiap pojok dan persimpangan tembok (tepat di bawah kolom). Ukuran cakar ayam untuk rumah 1 lantai yang umum di gunakan adalah 50x50x20 dan 60x60x20. Dan biasanya type pondasi tapak atau pondasi cakar ayam juga digunakan pada bangunan lantai satu tetapi dibangun. Ukuran cakar ayam 2 lantai konstruksi cakar ayam ialah salah satu sistem rekayasa teknik dalam pembuatan pondasi bangunan. Pondasi cakar ayam adalah bagian dasar dari bangunan yang mirip bentuknya seperti kaki unggas. Gambar pondasi cakar ayam rumah 2 lantai gumpang regency sumber : Jarak cakar ayam rumah 2 lantai, ukuran ring balok yg 12.full #cakarayam #rumah2tingkat #. Jarak cakar ayam rumah 2 lantai, detail pondasi cakar ayam rumah 2 lantai, cara buat cakar ayam, ukuran cakar ayam 2 lantai, pondasi cakar istalastu sistem cakar ayam modifikasi cam sumber : Concept 28 ukuran pondasi cakar ayam rumah.

Bagian yang paling mendasar adalah pondasi rumah. Ukuran cakar ayam 2 lantai konstruksi cakar ayam ialah salah satu sistem rekayasa teknik dalam pembuatan pondasi bangunan. Rumah dua lantai membutuhkan konstruksi cakar ayam agar rumah lebih kuat. Ukuran plat minimal 1 x 1 meter. Pondasi cakar ayam atau foot plat merupakan jenis pondasi yang kerap digunakan dalam pembangunan bertingkat.

Pondasi Cakar Ayam Untuk Rumah Tinggal - Info Terkait Rumah
Pondasi Cakar Ayam Untuk Rumah Tinggal - Info Terkait Rumah from ecs7.tokopedia.net
Cara mudah memasang pondasi cakar ayam yang tepat. Galian pondasi cakar ayam rumah tingkat dua lantai. Untuk membangun rumah 2 lantai, ukuran plat yang harus dibuat minimal adalah 1 x 1 meter. Jarak cakar ayam rumah 2 lantai, ukuran ring balok yg 12.full #cakarayam #rumah2tingkat #. Dan untuk ukuran cakar ayam yang pas untuk bangunan 2. Gambar pondasi rumah, ukuran cakar ayam rumah 1 lantai, contoh perhitungan pondasi rumah 2 lantai, pondasi rumah 2 lantai tanpa batu kali, pondasi teras, pondasi rumah 2 lantai, kedalaman pondasi rumah 1 lantai, cara membuat pondasi rumah yang koko hayashi. Anda bisa membuat lebih besar dari itu. Gambar pondasi cakar ayam rumah 2 lantai gumpang regency sumber :

Pada struktur rumah 2 lantai biasanya terdiri dari pondasi, sloof, tembok, plat lantai, dak lantai 2.

Tukang mandor pemborong kedalaman galian pondasi cakar ayam. Mengenal berbagai jenis pondasi bangunan dan cakar ayam. Pondasi cakar ayam menjadi solusi bagi anda dan para developer perumahan yanng memiliki masalah pada tanah yang labil. Anda bisa membuat lebih besar dari itu. Galian pondasi cakar ayam rumah tingkat dua lantai. Gambar pondasi rumah, ukuran cakar ayam rumah 1 lantai, contoh perhitungan pondasi rumah 2 lantai, pondasi rumah 2 lantai tanpa batu kali, pondasi teras, pondasi rumah 2 lantai, kedalaman pondasi rumah 1 lantai, cara membuat pondasi rumah yang koko hayashi. Gambar pondasi cakar ayam rumah 2 lantai gumpang regency sumber : Dan biasanya type pondasi tapak atau pondasi cakar ayam juga digunakan pada bangunan lantai satu tetapi dibangun. Pondasi cakar ayam atau foot plat merupakan jenis pondasi yang kerap digunakan dalam pembangunan bertingkat, khususnya rumah dua lantai. Inilah yang akan kita bahas. .cakar ayam bisanya kedalaman galian cakar ayam pondasi yaitu 2 meter dan 1,5m panjang lebar plat cakar ayam 100cm x 80cm dan 80cm x besi 13mm untuk mengisi tengahnya, dan juga biasanya mengunakan besi 13mm semua serta jarak begel 15cm. Dan untuk ukuran cakar ayam yang pas untuk bangunan 2. Ketika kita ingin membuat sebuah rumah yang memiliki lebih dari dua lantai, tentunya kita akan menggunakan pondasi yang kokoh untuk menopang beban bangunan diatasnya.

Pondasi cakar ayam atau foot plat merupakan jenis pondasi yang kerap digunakan dalam pembangunan bertingkat. Didalam cakar ayam terdapat pipa beton yang mirip karena kekuatannya anda bisa melakukan cara membuat cakar ayam rumah 2 lantai atau bahkan gedung bertingkat. Tukang mandor pemborong kedalaman galian pondasi cakar ayam. Bertanya saran struktur bangunan 2 lantai luas bangunan 360. Pondasi rumah 2 lantai sedikit berbeda dengan rumah 1 lantai, karena beban yang ditahan lebih berat.

Detail Pondasi Cakar Ayam Rumah 2 Lantai - Sekitar Rumah
Detail Pondasi Cakar Ayam Rumah 2 Lantai - Sekitar Rumah from www.asdar.id
Ukuran cakar ayam 2 lantai konstruksi cakar ayam ialah salah satu sistem rekayasa teknik dalam pembuatan pondasi bangunan. Concept 28 ukuran pondasi cakar ayam rumah. Pondasi cakar ayam atau foot plat merupakan jenis pondasi yang kerap digunakan dalam pembangunan bertingkat. Pondasi cakar ayam adalah bagian dasar dari bangunan yang mirip bentuknya seperti kaki unggas. Dengan tujuan pondasi mampu menahan berat beban bangunan sehingga memberikan kenyamanan terhadap penghuninya. Pondasi cakar ayam rumah 2 lantai dengan besi. Pondasi cakar ayam untuk rumah 2 lantai 183 besi permata cara membuat pondasi rumah 2 lantai yang kokoh tips membuat rumah murah minimalis dan new 22 jarak cakar ayam rumah 2 lantai minimalist home designs Lalu bagaimana jika pondasi cakar ayam diaplikasikan pada rumah 2 lantai?

Galian pondasi cakar ayam rumah tingkat dua lantai.

Mengenal berbagai jenis pondasi bangunan dan cakar ayam. Pada struktur rumah 2 lantai biasanya terdiri dari pondasi, sloof, tembok, plat lantai, dak lantai 2. Lalu bagaimana jika pondasi cakar ayam diaplikasikan pada rumah 2 lantai? Cara membuat cakar ayam pondasi rumah menggunakan besi behel 10 inc video cara membuat pondasi beton. Ukuran cakar ayam untuk rumah 1 lantai yang umum di gunakan adalah 50x50x20 dan 60x60x20. Concept 28 ukuran pondasi cakar ayam rumah. Pondasi rumah 2 lantai sedikit berbeda dengan rumah 1 lantai, karena beban yang ditahan lebih berat. Rumah dua lantai membutuhkan konstruksi cakar ayam agar rumah lebih kuat. Pondasi cakar ayam atau foot plat merupakan jenis pondasi yang kerap digunakan dalam pembangunan bertingkat, khususnya rumah dua lantai. Jarak cakar ayam rumah 2 lantai, ukuran sloof rumah 2 lantai, detail pondasi cakar ayam rumah 2 lantai, jarak pemasangan cakar ayam gambar cakar ayam rumah lantai 2 gratis omah sumber : Jarak cakar ayam rumah 2 lantai, ukuran ring balok yg 12.full #cakarayam #rumah2tingkat #. Ketika kita ingin membuat sebuah rumah yang memiliki lebih dari dua lantai, tentunya kita akan menggunakan pondasi yang kokoh untuk menopang beban bangunan diatasnya. Pondasi cakar ayam rumah 2 lantai dengan besi.

Posting Komentar

0 Komentar